NFPA Certified Fire Planiner CFPE Exam Questions in PDF

Free NFPA CFPE Dumps Questions (page: 2)

Exhibit.



On plan sheet P01 fire protection symbols that are square with a solid dot indicate

  1. sprinkler head recessed pendent ordinary temperature quick response
  2. sprinkler head upright intermediate temperature quick response
  3. upright open sprinkler head for deluge system
  4. sprinkler head recessed pendent intermediate temperature quick response

Answer(s): A

Explanation:

On the plan sheet P01, the fire protection symbols that are square with a solid dot typically represent a recessed pendent sprinkler head designed for ordinary temperature, quick response. This symbol is used in NFPA standards, particularly in NFPA 13, to indicate sprinkler types and their installation characteristics. Recessed pendent sprinklers are installed to protect against fire hazards from the ceiling downwards, and their quick response mechanism helps to control fires rapidly in occupied spaces.



Exhibit.







What is the guardrail height for rampS/Stairs shown in plan A5?

  1. 1 fl 3 in (38 m)
  2. 1 ft 7 m (48 m)
  3. 2 fl 10 in (86 m)
  4. 3 ft 6 in (1 m)

Answer(s): D

Explanation:

According to the plan A5, the guardrail height for ramps and stairs is indicated as 3 ft 6 in (1 m). This height is compliant with the general safety standards specified in building codes and NFPA standards to prevent falls and ensure safety. The height meets the minimum requirement set by the International Building Code (IBC) and NFPA 101 (Life Safety Code) for guardrails in public and commercial buildings, ensuring effective protection for all building occupants.



Actuation of alarm notification appliances at the protected premises shall occur within how many seconds after the activation of an initiating device?

  1. 10 seconds
  2. 30 seconds
  3. 60 seconds
  4. 90 seconds

Answer(s): A

Explanation:

According to NFPA 72, National Fire Alarm and Signaling Code, the actuation of alarm notification appliances at the protected premises shall occur within 10 seconds after the activation of an initiating device, such as a smoke detector or manual pull station. This quick response time is crucial to ensure occupants are promptly alerted to evacuate in case of a fire or emergency, minimizing potential harm or loss of life. This requirement is established to maximize safety and compliance with fire protection standards.



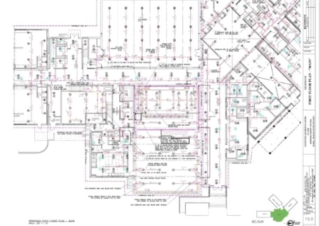
Exhibit.



On plan F2.0. the fire sprinklers in playroom A14 are supplied by what size cross main?

  1. 1 in (25 mm)
  2. 1 1/4 in (32 mm)
  3. 2 1 2 m (64 mm)
  4. 3 in (76 mm)

Answer(s): B

Explanation:

On plan F2.0, the fire sprinklers in playroom A14 are supplied by a cross main with a diameter of 1 1/4 inches (32 mm). This size is adequate to deliver the necessary flow rate and pressure required to meet the fire protection demand for a room of this size and occupancy. The sprinkler system design and piping must comply with NFPA 13, Standard for the Installation of Sprinkler Systems, which outlines the required sizing and installation practices for fire protection systems in various types of occupancies, including playrooms and similar spaces.



What is the maximum travel distance to an exit that is permitted in a sprinklered movie theater'?

  1. 100 ft (30 m)
  2. 150 ft (46 m)
  3. 200 ft (61m)
  4. 250 ft (76 m)

Answer(s): C

Explanation:

For a sprinklered movie theater, the maximum travel distance to an exit is typically 200 feet (61 meters), as stipulated by NFPA 101, Life Safety Code. This distance is determined based on the need to ensure safe egress for occupants in an emergency, balancing the need for quick evacuation with the layout and size of the building. The 200 ft maximum allows sufficient time for occupants to reach an exit while maintaining safety standards in a fully sprinklered environment.



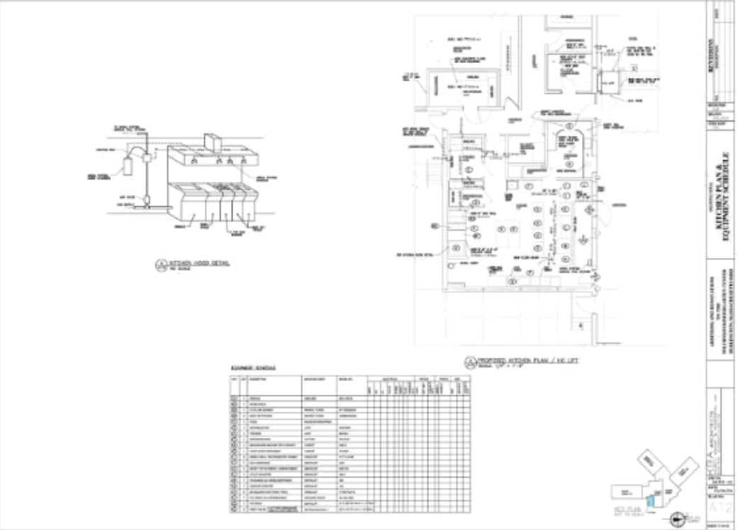
Exhibit.



On plan A12 what occupant load factor would you use?

  1. 30 ft2 (2 8 m2)
  2. 50 ft2 (4 6 m2)
  3. 100 ft2 (9 3 m2)
  4. 200 ft2 (18 6 m2)

Answer(s): A

Explanation:

On plan A12, the occupant load factor to use is 30 ft² (2.8 m²) per person. This factor is used to calculate the maximum number of occupants for a given space based on its size and usage, ensuring that the building adheres to safe occupancy levels as required by fire safety codes. The occupant load factor is determined by the type of occupancy and activity level within the space and is outlined in NFPA 101, Life Safety Code, which provides guidelines for calculating occupant loads to ensure safety during an emergency evacuation.
Top of Form
Bottom of Form



Exhibit.





What is the approximate maximum available water indicated on supply graph 2 on plan F0.2?

  1. 980 gpm (3,709 Ipm)
  2. 1,680 gpm (6,359 Ipm)
  3. 1.980gpm (7,495 Ipm)
  4. 3,980gpm(15,066lpm)

Answer(s): C

Explanation:

The graph labeled as "Water Supply Graph N°2" presents a standard water supply flow test summary, which indicates the relationship between pressure (psi or kPa) and flow (gpm or Lpm) for a specific system or hydrant.
How to interpret the graph:
Static Pressure:
This is the pressure measured when there is no water flowing, shown at the highest point on the left side of the graph (indicated as approximately 100 psi or 689 kPa in this case).
Residual Pressure:
This is the pressure available when water is flowing at a specific rate. The residual pressure line decreases as flow increases, indicating that the pressure reduces when water is drawn from the system.
Maximum Available Water:
The maximum available water is the point where the system can deliver the highest possible flow (gpm) before the residual pressure reaches a critical minimum level, indicating the system's limit.
Flow at Maximum Available Water:
In this specific graph, the point marked as Maximum Available Water is where the flow reaches 1,980 gpm (7,495 Lpm). This is derived by following the flow axis (horizontal axis) until it intersects with the Maximum Available Water curve on the graph.
Why the Correct Answer is C (1,980 gpm):
By following the plotted line for residual pressure, the graph shows that the maximum flow attainable from the system is 1,980 gpm (7,495 Lpm) before pressure drops too low. This value represents the system's maximum water supply capacity under normal operating conditions. This analysis is consistent with the flow rates displayed on the graph and matches the key markers labeled, which indicate the operational limits of the system.
NFPA Relevance:
In fire protection and water supply systems, understanding the maximum available water flow is essential for ensuring that sufficient water can be delivered in the event of a fire. This calculation is particularly relevant in the context of NFPA 20 (Standard for the Installation of Stationary Pumps for Fire Protection) and NFPA 25 (Standard for the Inspection, Testing, and Maintenance of Water-Based Fire Protection Systems), as these standards require that water supply systems are capable of delivering adequate flow to suppression systems under expected fire conditions.



Draperies and decorations in day care occupancies shall comply with the provisions of which NFPA document?

  1. NFPA701
  2. NFPA7Q3
  3. NFPA 704
  4. NFPA 705

Answer(s): A

Explanation:

According to NFPA 101, Life Safety Code, draperies, curtains, and other similar furnishings and decorations in day care occupancies must comply with NFPA 701, Standard Methods of Fire Tests for Flame Propagation of Textiles and Films. NFPA 701 provides the test methods to assess the flammability of textiles and films used in various settings, including day care facilities. It ensures that such materials do not contribute to the spread of fire, thereby maintaining a safe environment for occupants.



Share your comments for NFPA CFPE exam with other users:

R
Rakesh
10/6/2023 3:06:00 AM

question 59 - a newly-created role is not assigned to any user, nor granted to any other role. answer is b https://docs.snowflake.com/en/user-guide/security-access-control-overview

N
Nik
11/10/2023 4:57:00 AM

just passed my exam today. i saw all of these questions in my text today. so i can confirm this is a valid dump.

D
Deep
6/12/2023 7:22:00 AM

needed dumps

T
tumz
1/16/2024 10:30:00 AM

very helpful

N
NRI
8/27/2023 10:05:00 AM

will post once the exam is finished

K
kent
11/3/2023 10:45:00 AM

relevant questions

Q
Qasim
6/11/2022 9:43:00 AM

just clear exam on 10/06/2202 dumps is valid all questions are came same in dumps only 2 new questions total 46 questions 1 case study with 5 question no lab/simulation in my exam please check the answers best of luck

C
Cath
10/10/2023 10:09:00 AM

q.112 - correct answer is c - the event registry is a module that provides event definitions. answer a - not correct as it is the definition of event log

S
Shiji
10/15/2023 1:31:00 PM

good and useful.

A
Ade
6/25/2023 1:14:00 PM

good questions

P
Praveen P
11/8/2023 5:18:00 AM

good content

A
Anastasiia
12/28/2023 9:06:00 AM

totally not correct answers. 21. you have one gcp account running in your default region and zone and another account running in a non-default region and zone. you want to start a new compute engine instance in these two google cloud platform accounts using the command line interface. what should you do? correct: create two configurations using gcloud config configurations create [name]. run gcloud config configurations activate [name] to switch between accounts when running the commands to start the compute engine instances.

P
Priyanka
7/24/2023 2:26:00 AM

kindly upload the dumps

N
Nabeel
7/25/2023 4:11:00 PM

still learning

G
gure
7/26/2023 5:10:00 PM

excellent way to learn

C
ciken
8/24/2023 2:55:00 PM

help so much

B
Biswa
11/20/2023 9:28:00 AM

understand sql col.

S
Saint Pierre
10/24/2023 6:21:00 AM

i would give 5 stars to this website as i studied for az-800 exam from here. it has all the relevant material available for preparation. i got 890/1000 on the test.

R
Rose
7/24/2023 2:16:00 PM

this is nice.

A
anon
10/15/2023 12:21:00 PM

q55- the ridac workflow can be modified using flow designer, correct answer is d not a

N
NanoTek3
6/13/2022 10:44:00 PM

by far this is the most accurate exam dumps i have ever purchased. all questions are in the exam. i saw almost 90% of the questions word by word.

E
eriy
11/9/2023 5:12:00 AM

i cleared the az-104 exam by scoring 930/1000 on the exam. it was all possible due to this platform as it provides premium quality service. thank you!

M
Muhammad Rawish Siddiqui
12/8/2023 8:12:00 PM

question # 232: accessibility, privacy, and innovation are not data quality dimensions.

V
Venkat
12/27/2023 9:04:00 AM

looks wrong answer for 443 question, please check and update

V
Varun
10/29/2023 9:11:00 PM

great question

D
Doc
10/29/2023 9:36:00 PM

question: a user wants to start a recruiting posting job posting. what must occur before the posting process can begin? 3 ans: comment- option e is incorrect reason: as part of enablement steps, sap recommends that to be able to post jobs to a job board, a user need to have the correct permission and secondly, be associated with one posting profile at minimum

I
It‘s not A
9/17/2023 5:31:00 PM

answer to question 72 is d [sys_user_role]

I
indira m
8/14/2023 12:15:00 PM

please provide the pdf

R
ribrahim
8/1/2023 6:05:00 AM

hey guys, just to let you all know that i cleared my 312-38 today within 1 hr with 100 questions and passed. thank you so much brain-dumps.net all the questions that ive studied in this dump came out exactly the same word for word "verbatim". you rock brain-dumps.net!!! section name total score gained score network perimeter protection 16 11 incident response 10 8 enterprise virtual, cloud, and wireless network protection 12 8 application and data protection 13 10 network défense management 10 9 endpoint protection 15 12 incident d

A
Andrew
8/23/2023 6:02:00 PM

very helpful

L
latha
9/7/2023 8:14:00 AM

useful questions

I
ibrahim
11/9/2023 7:57:00 AM

page :20 https://exam-dumps.com/snowflake/free-cof-c02-braindumps.html?p=20#collapse_453 q 74: true or false: pipes can be suspended and resumed. true. desc.: pausing or resuming pipes in addition to the pipe owner, a role that has the following minimum permissions can pause or resume the pipe https://docs.snowflake.com/en/user-guide/data-load-snowpipe-intro

F
Franklin Allagoa
7/5/2023 5:16:00 AM

i want hcia exam dumps

S
SSA
12/24/2023 1:18:00 PM

good training

AI Tutor 👋 I’m here to help!